a7db3eff64596f312b3bbc7c8af5c93enoqsh.png

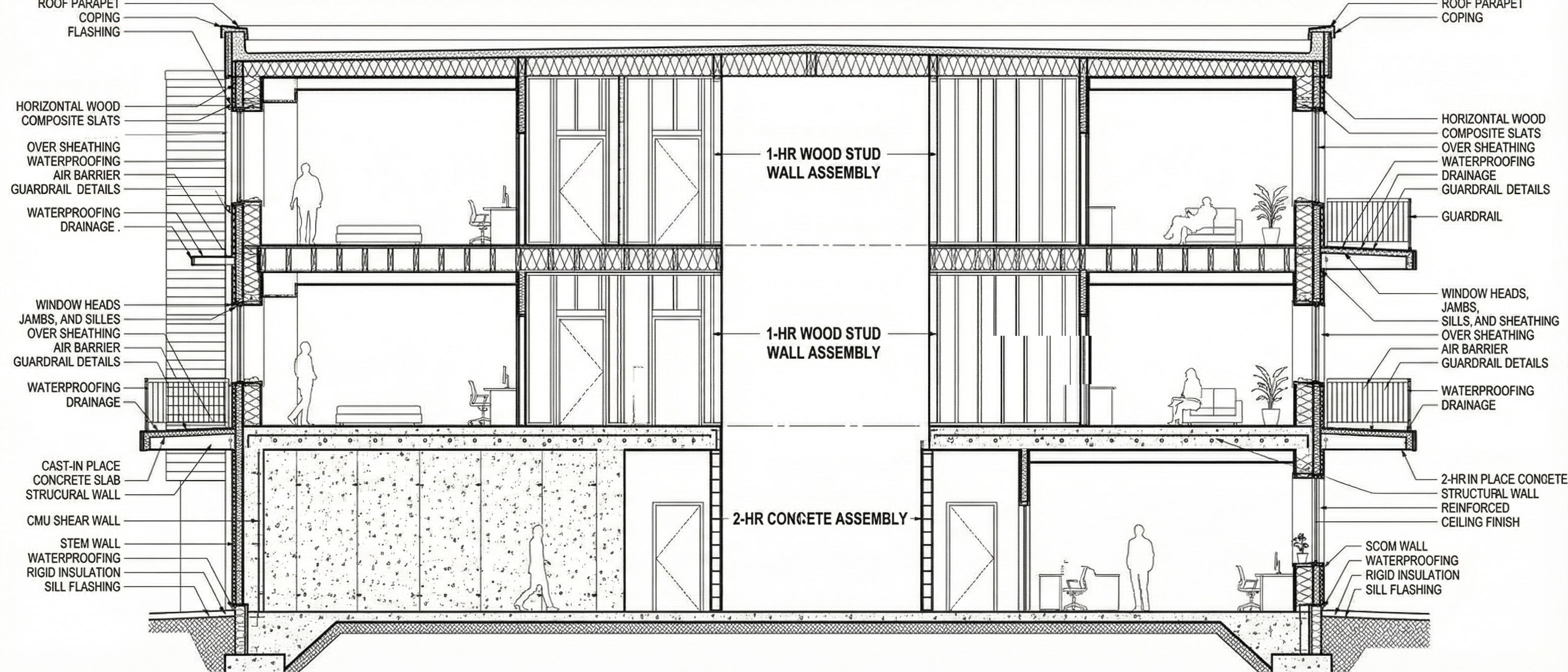
interior design rendering, render this wireframe into technical drawing, “Render this architectural building section as a highly detailed technical wall-section drawing. Keep all original geometry exactly the same, but enhance clarity, lineweights, and material expression. Show this section using clean black linework on a white background, consistent with architectural drafting standards.

Bottom floor should appear as Type I concrete construction:
– cast-in-place concrete structural wall
– reinforced concrete slab
– waterproofing and insulation layer
– foundation stem wall
– sill flashing
– CMU or concrete shear walls where appropriate

Upper floors should appear as Type V wood construction:
– 2×6 wood stud exterior wall
– exterior wood composite slat cladding horizontal or vertical
– exterior air barrier + sheathing
– batt insulation in stud cavity
– interior gypsum board
– floor assembly with joists, subfloor, and ceiling finish below

Include all fire-rating indications:
– 2-hour rated concrete assembly at ground level
– 1-hour rated wood stud wall assemblies above

Add all typical wall-section details:
– roof parapet + coping
– balcony waterproofing + guardrail attachment
– exterior window head, jamb, and sill details
– flashing at every penetration
– structural connections joist-to-wall, slab-to-wall
– insulation, vapor barrier, and air barrier layers
– section poche for cut elements dark filled
– lineweight hierarchy cuts bold, backgrounds thin
– material hatches concrete stipple, wood framing hatch, insulation pattern

Lighting should be neutral and flat—no shadows. This is a technical drawing, not a render. Keep EVERYTHING crisp, legible, and clean.”, keep exact camera angle, including people, furniture, indoor plants, high quality, professional, detailed scene

Promptinterior design rendering, render this wireframe into technical drawing, “Render this architectural building section as a highly detailed technical wall-section drawing. Keep all original geometry exactly the same, but enhance clarity, lineweights, and material expression. Show this section using clean black linework on a white background, consistent with architectural drafting standards.

Bottom floor should appear as Type I concrete construction:
– cast-in-place concrete structural wall
– reinforced concrete slab
– waterproofing and insulation layer
– foundation stem wall
– sill flashing
– CMU or concrete shear walls where appropriate

Upper floors should appear as Type V wood construction:
– 2×6 wood stud exterior wall
– exterior wood composite slat cladding (horizontal or vertical)
– exterior air barrier + sheathing
– batt insulation in stud cavity
– interior gypsum board
– floor assembly with joists, subfloor, and ceiling finish below

Include all fire-rating indications:
– 2-hour rated concrete assembly at ground level
– 1-hour rated wood stud wall assemblies above

Add all typical wall-section details:
– roof parapet + coping
– balcony waterproofing + guardrail attachment
– exterior window head, jamb, and sill details
– flashing at every penetration
– structural connections (joist-to-wall, slab-to-wall)
– insulation, vapor barrier, and air barrier layers
– section poche for cut elements (dark filled)
– lineweight hierarchy (cuts bold, backgrounds thin)
– material hatches (concrete stipple, wood framing hatch, insulation pattern)

Lighting should be neutral and flat—no shadows. This is a technical drawing, not a render. Keep EVERYTHING crisp, legible, and clean.”, keep exact camera angle, including people, furniture, indoor plants, high quality, professional, detailed scene

Date24 November 2025

Share